27 242
M043
2
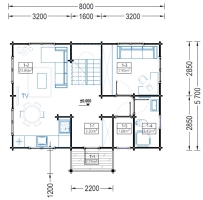
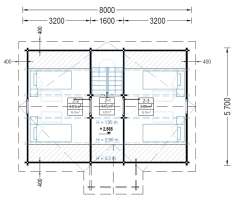
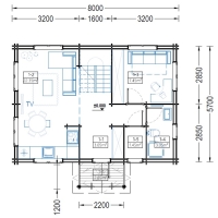
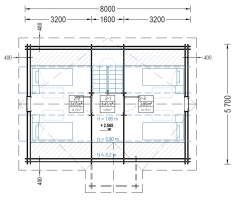
8x5,7
70 m2
5 - 6
DESCRIÇÃO
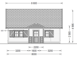
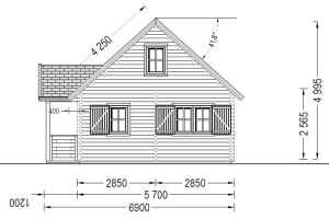
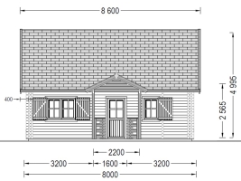
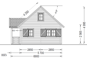
A casa modelo EMMA tem 2 quartos no segundo andar: dependendo das suas necessidades, pode modificar a disposição com divisórias extra e assim separar os diferentes espaços. Telhado de duas águas em estilo clássico que dá um toque arquitetónico agradável ao design. Um pequeno alpendre com um telhado de duas águas independente na frente da casa dá um belo toque final ao projeto arquitetónico. Uma casa de banho independente no primeiro andar da casa. A estrutura relativamente compacta da casa de madeira EMMA pode tornar-se uma opção elegante e funcional para famílias que desejam experimentar um modo de vida mais natural. O principal material de construção desta casa, a madeira de coníferas, garante um ambiente interior acolhedor e saudável. Desfrute de uma experiência de vida simples, enriquecedora e ecológica em pequena escala na sua nova casa.
O que está incluído no nosso Orçamento?
- Pack com toda a estrutura em madeira da casa (Piso, paredes, teto de madeira, portas e janelas)
- Portas e janelas de vidro duplo,
- Chão em madeira,
- Ferragens.
O que NÃO está incluído no nosso Orçamento? (Poderá ser orçamentado à parte)
- Eletrodomésticos,
- Eletricidade e Canalizações,
- Laje de Betão,
- Projeto de Arquitetura,
- Projeto de Especialidades,
- Licenças camarárias,
- Transporte,
- Montagem,
- Qualquer intervenção necessária no terreno, ao nivel de terraplanagem, instalação de serviços ou nivelação.


















