CONCEITO CASAS EXPANSÍVEIS
As casas expansíveis são um conceito de habitabilidade novo em Portugal. Visa essencialmente dar resposta a clientes que pretendem um estrutura amovível de dimensões muito reduzidas no momento do transporte e que após a expansão da casa dá origem a uma estrutura com dimensão bastante generosa que rivaliza com qualquer outra estrutura amovível do mercado. É uma estrutura que pode ser, quase, na totalidade personalizada pelo cliente uma vez que é realizada por encomenda e fabricada segundo o gosto indivídual.
DIMENSÕES
As nossas casas expansíveis estão disponíveis em três medidas padrão:

| Dimensão | Dobrada | Expandida |
|---|---|---|
| Altura | 2,55m | 2,55m |
| Largura | 2,25m | 6,35m |
| Comprimento | 5,90m | 5,90m |
| Área | 15,00m2 | 37,50m2 |
| Dimensão | Dobrada | Expandida |
|---|---|---|
| Altura | 2,55m | 2,55m |
| Largura | 2,25m | 6,35m |
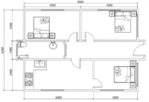
| Comprimento | 9,00m | 9,00m |
| Área | 20,30m2 | 57,20m2 |
| Dimensão | Dobrada | Expandida |
|---|---|---|
| Altura | 2,55m | 2,55m |
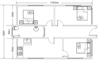
| Largura | 2,25m | 6,35m |
| Comprimento | 11,80m | 11,80m |
| Área | 26,60m2 | 75,00m2 |
CONDIÇÕES
INCLUÍDO
- Módulo base da casa expansível,
- Casa de banho completa (Poliban, lavatório, vaso sanitário),
- Cozinha (Armários de chão, banca, lava loíças e torneira),
- Instalação electríca (interna),
- Canalização (interna),
- Flutuante de chão, PVC de interior e Painel sandwich de exterior,
- Transporte (até 100km).
NÃO INCLUÍDO
- Valor do IVA à taxa em vigor (23%),
- Eletrodomésticos,
- Montagem (Para orçamentar a montagem dos módulos teremos de ter conhecimento do local exato onde será realizada. A montagem, em média, demora 9 dias úteis).
PERSONALIZAÇÃO
O nível de personalização das casas casas expansíveis é praticamente total:
- Distribuição das paredes interiores,
- Formato e disposição da cozinha,
- Formato e disposição da casa de banho,
- Flutuante de Chão,
- PVC para paredes interiores,
- Quantidade e disposição de portas e janelas,
- Painel sandwich para paredes exteriores.

























