34 426
M037
2
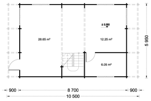
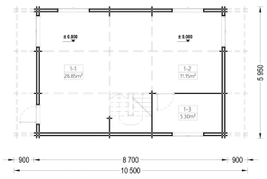
10,50x5,95
95 m2
5 - 6
DESCRIÇÃO
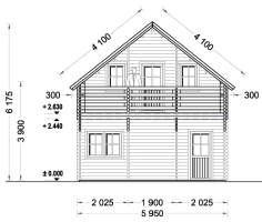
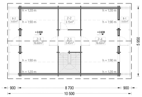
A casa modelo LANGON tem a sua distribuição adequada em dois pavimentos garante a máxima privacidade e conforto ao dividir a casa em áreas distintas para morar e descansar. Dois quartos o que permitem manter a sua privacidade a toda a hora. Uma grande área de estar com cozinha aberta no primeiro andar. Duas grandes varandas no segundo andar, cobertas com um elegante balanço, oferecendo um espaço onde pode descansar e desfrutar do ar puro. O telhado em forma de ápice complementa bem toda a estrutura e proporciona uma estética clássica de excelência. A LANGON tem a sua disposição interior espaçosa e bem planeado, pode desfrutar da sensação de amplitude e da possibilidade de se desconectar do mundo exterior. Convide os seus amigos e familiares a passar momentos inesquecíveis juntos.
O que está incluído no nosso Orçamento?
- Pack com toda a estrutura em madeira da casa (Piso, paredes, teto de madeira, portas e janelas)
- Portas e janelas de vidro duplo,
- Chão em madeira,
- Ferragens.
O que NÃO está incluído no nosso Orçamento? (Poderá ser orçamentado à parte)
- Eletrodomésticos,
- Eletricidade e Canalizações,
- Laje de Betão,
- Projeto de Arquitetura,
- Projeto de Especialidades,
- Licenças camarárias,
- Transporte,
- Montagem,
- Qualquer intervenção necessária no terreno, ao nivel de terraplanagem, instalação de serviços ou nivelação.




















