11 496
M019
1
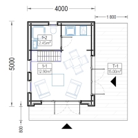
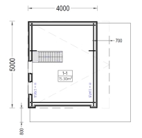
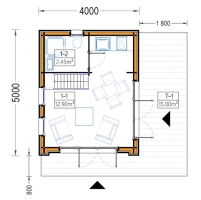
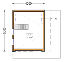
4x5
20 m2
5 - 6
DESCRIÇÃO
A casa modelo SOPHIA tem um loft espaçoso de 15 m² que proporciona um espaço separado e tranquilo para descansar confortavelmente. Janelas e portas de vidro grandes e PVC que garantem um espaço interior luminoso e acolhedor. Um terraço charmoso de 15 m² (item extra e não incluído no preço) que permitirá que passe mais tempo ao ar livre, seja a apanhar sol, a apreciar a vista ou a observar as estrelas. O revestimento moderno dá instantaneamente mais estilo e personalidade ao design geral. A nossa casa de madeira SOPHIA é um verdadeiro deleite para quem valoriza um design excecional e quer rodear-se de soluções arquitetónicas mais contemporâneas. Se procura um lugar compacto, elegante, ecológico e mais acessível para estadias temporárias para passar um tempo sozinho ou com o seu parceiro, este modelo pode ser a opção ideal.
O que está incluído no nosso Orçamento?
- Pack com toda a estrutura em madeira da casa (Piso, paredes, teto de madeira, portas e janelas)
- Portas e janelas de vidro duplo,
- Chão em madeira,
- Ferragens.
O que NÃO está incluído no nosso Orçamento? (Poderá ser orçamentado à parte)
- Eletrodomésticos,
- Eletricidade e Canalizações,
- Laje de Betão,
- Projeto de Arquitetura,
- Projeto de Especialidades,
- Licenças camarárias,
- Transporte,
- Montagem,
- Qualquer intervenção necessária no terreno, ao nivel de terraplanagem, instalação de serviços ou nivelação.

















