26 093
M018
3
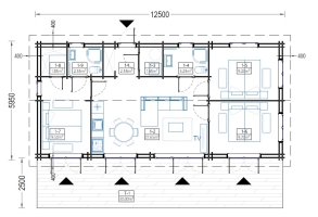
12,50x5,95
75 m2
5 - 6
DESCRIÇÃO
A casa modelo AGNES tem 3 quartos que proporcionam a todos os residentes áreas de dormir independentes e permitem receber hóspedes sempre que necessário. Uma sala de estar espaçosa de 23 m² com área de cozinha aberta, que permite planear a área de descanso e a sala de jantar da maneira mais confortável. Um grande terraço de 30 m² para aproveitar o sol da manhã com uma chávena de café. 4 portas de vidro duplo para o terraço, que garantem fácil acesso ao exterior e muita luz natural no interior. 2 pequenas divisões que podem ser usadas como depósitos ou vestiários. 2 casas de banho, que garantem o conforto residencial. Se sonha com uma casa de madeira charmosa que possa acomodar confortavelmente toda a sua família e permitir que tenha um estilo de vida mais descontraído.O modelo AGNES é muito espaço interior bem planeado, dá-lhe o máximo conforto e liberdade para conceber o espaço da forma que pretende.
O que está incluído no nosso Orçamento?
- Pack com toda a estrutura em madeira da casa (Piso, paredes, teto de madeira, portas e janelas)
- Portas e janelas de vidro duplo,
- Chão em madeira,
- Ferragens.
O que NÃO está incluído no nosso Orçamento? (Poderá ser orçamentado à parte)
- Eletrodomésticos,
- Eletricidade e Canalizações,
- Laje de Betão,
- Projeto de Arquitetura,
- Projeto de Especialidades,
- Licenças camarárias,
- Transporte,
- Montagem,
- Qualquer intervenção necessária no terreno, ao nivel de terraplanagem, instalação de serviços ou nivelação.











