29 097
M014
3
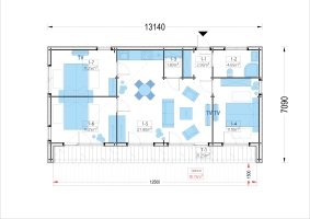
13,14x7,09
70 m2
5 - 6
DESCRIÇÃO
A casa modelo KAYA III tem uma bonita fachada simétrica com 4 portas francesas para luz natural e uma vista fantástica. Revestimento vertical moderno que proporciona também apoio estrutural. Uma disposição preparada para viver confortavelmente, incluindo uma cozinha de conceito aberto com 27 m². 3 quartos espaçosos e 1 casa de banho para um descanso de qualidade. 4 entradas pela fachada e 1 entrada pelas traseiras para deslocações rápidas e fáceis. Divisões independentes para arrumação. Um terraço opcional onde poderá receber convidados para churrascos ou mudar de cenário sem ter de viajar para outro lugar. Casa de madeira moderna KAYA satisfaz todos os que procuram conforto e conveniência, ao mesmo tempo que proporciona a oportunidade de desfrutar de uma vida mais próxima da natureza. Um olhar rápido através de qualquer uma das portas de vidro, quase do chão até ao teto, oferecerá uma vista calmante para o espaçoso terraço, caso opte por adicioná-lo à sua compra. As divisões interiores oferecem áreas para reuniões familiares na cozinha aberta, uma boa noite em qualquer um dos 3 quartos e uma despensa, para que tenha mais espaço onde este é importante
O que está incluído no nosso Orçamento?
- Pack com toda a estrutura em madeira da casa (Piso, paredes, teto de madeira, portas e janelas)
- Portas e janelas de vidro duplo,
- Chão em madeira,
- Ferragens.
O que NÃO está incluído no nosso Orçamento? (Poderá ser orçamentado à parte)
- Eletrodomésticos,
- Eletricidade e Canalizações,
- Laje de Betão,
- Projeto de Arquitetura,
- Projeto de Especialidades,
- Licenças camarárias,
- Transporte,
- Montagem,
- Qualquer intervenção necessária no terreno, ao nivel de terraplanagem, instalação de serviços ou nivelação.




















